Изображение отсутствует
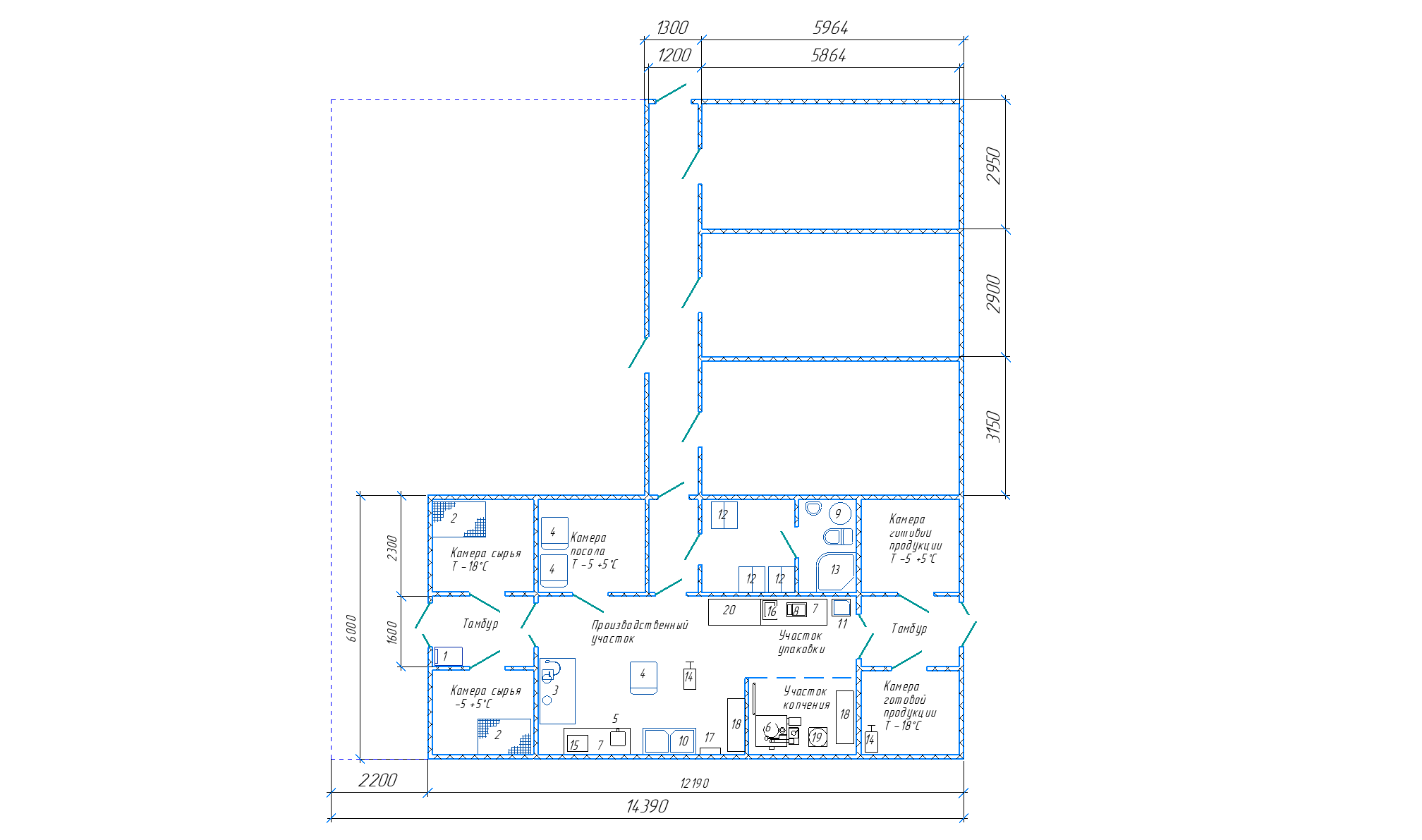
Рыбный цех К-Р -200.2 в БВЗ с бытовыми (конс. копч. сол. стейки)
12 232 700 ₽
Доступен лизинг от 372 078 ₽/мес
⏱
Под заказ: уточняйте сроки
📦
Доставка: рассчитывается индивидуально
💳
Оплата: по счету, картой, лизинг
Ширину нужно увеличить до 6500
Ширину нужно увеличить до 6500
Поставщик
- Полное наименование:
- ООО "Пищевые технологии"
- ИНН:
- 7722474556
- КПП:
- 772201001
- ОГРН:
- 1197746280874
- Адрес:
- г. Москва
