Изображение отсутствует
Молочный цех М-500.3.1 (Ручной розлив, без общей кровли, без ГЛВ, холодильная камера, бытовые, творог, кефир, сметана, молоко, сыр мягкий, 500 л)
4 797 310 ₽
Доступен лизинг от 145 918 ₽/мес
Ключевые характеристики
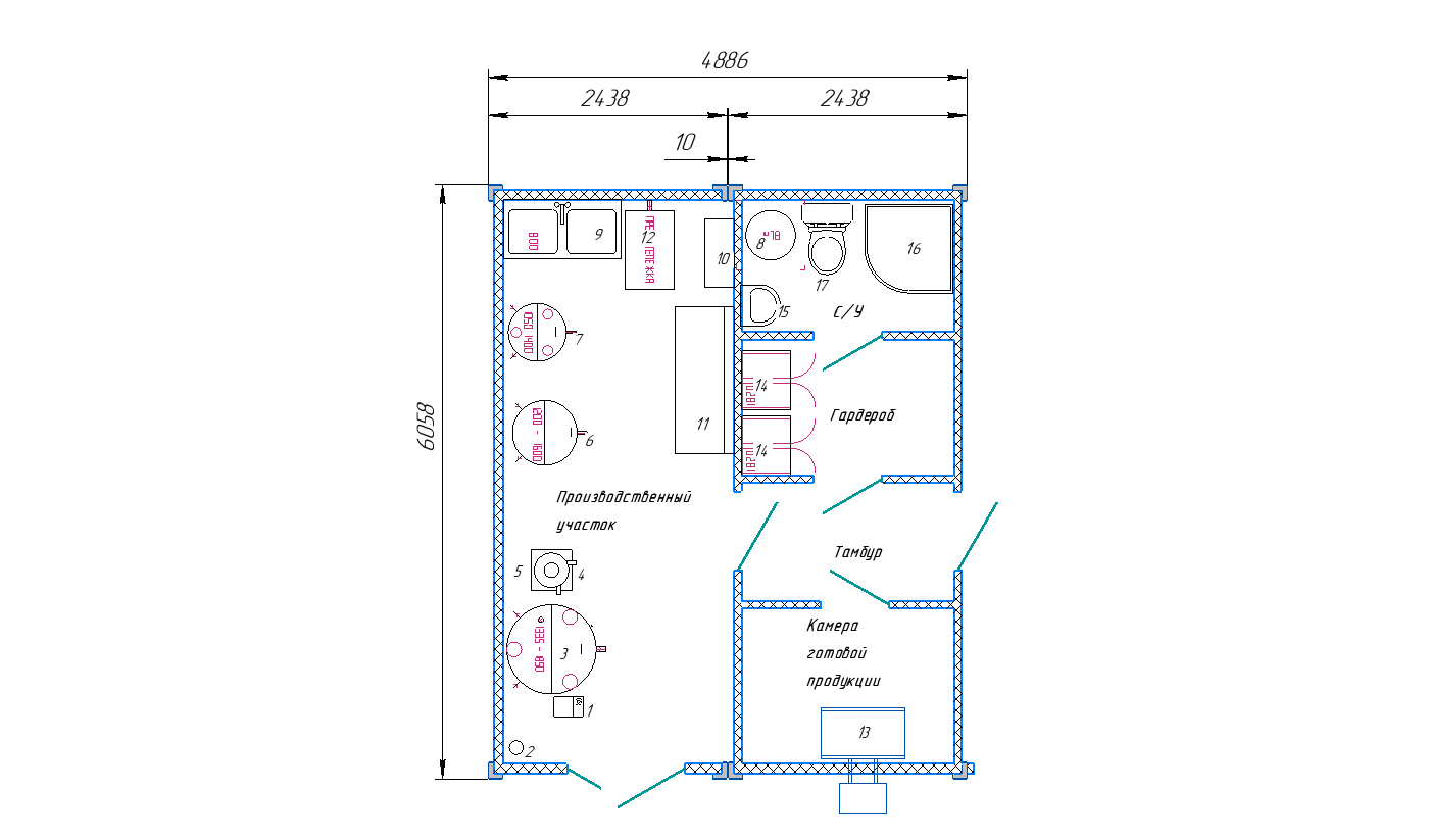
Площадь здания, м²
30
Продуктовый расчет на одни сутки (пример) (для КП)
Сырьё: молоко (МДЖ 3,7%) – 500 кг.
Готовые продукты:
• молоко пастеризованное (МДЖ 2,5%) – 265 кг;
• напиток кисломолочный кефирный (МДЖ 2,5%) – 100 кг или творог (МДЖ 9%) – 15 кг;
• сметана (МДЖ 20%) – 35 кг;
• сыр мягкий Адыгейский – 10 кг;
• сыворотка – 90 кг или 175 кг., TEXT
⏱
Под заказ: уточняйте сроки
📦
Доставка: рассчитывается индивидуально
💳
Оплата: по счету, картой, лизинг
укомплектован всем необходимым оборудованием и коммуникациями для полного технологического цикла переработки молока. Цех соответствует санитарно-гигиеническим требованиям Роспотребнадзора, техническому регламенту Таможенного союза «О безопасности молока и молочной продукции» (ТР ТС 033/2013), нормам пожарной и электробезопасности, правилам безопасности труда. Санитарная обработка оборудования и помещения цеха осуществляется в соответствии с инструкциями Всероссийского института молочной индустрии.
укомплектован всем необходимым оборудованием и коммуникациями для полного технологического цикла переработки молока. Цех соответствует санитарно-гигиеническим требованиям Роспотребнадзора, техническому регламенту Таможенного союза «О безопасности молока и молочной продукции» (ТР ТС 033/2013), нормам пожарной и электробезопасности, правилам безопасности труда. Санитарная обработка оборудования и помещения цеха осуществляется в соответствии с инструкциями Всероссийского института молочной индустрии.
Поставщик
- Полное наименование:
- ООО "Пищевые технологии"
- ИНН:
- 7722474556
- КПП:
- 772201001
- ОГРН:
- 1197746280874
- Адрес:
- г. Москва
