Изображение отсутствует
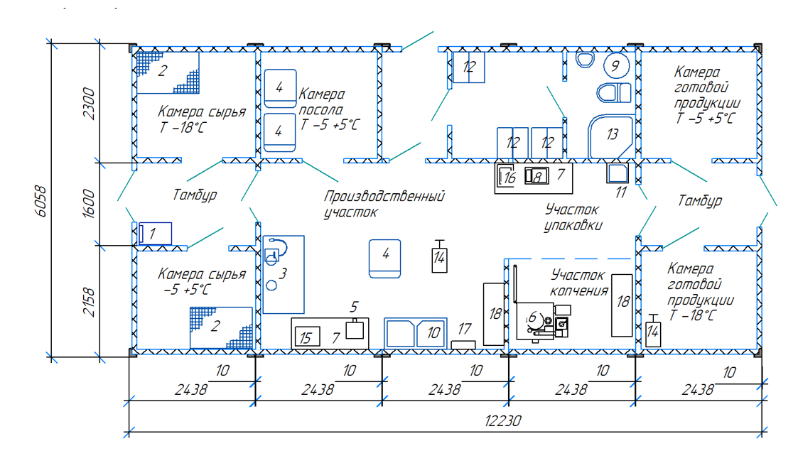
Рыбный цех РЦ-200.2 (в модулях, копч. сол. стейки, заморозка, бытовые)
10 297 660 ₽
Доступен лизинг от 313 220 ₽/мес
⏱
Под заказ: уточняйте сроки
📦
Доставка: рассчитывается индивидуально
💳
Оплата: по счету, картой, лизинг
Ширину нужно увеличить до 6500
Ширину нужно увеличить до 6500
Поставщик
- Полное наименование:
- ООО "Пищевые технологии"
- ИНН:
- 7722474556
- КПП:
- 772201001
- ОГРН:
- 1197746280874
- Адрес:
- г. Москва
