Изображение отсутствует
Мясной цех МЦ-500.4 (Переработка 500 кг мяса, консервы, бытовые)
9 846 620 ₽
Доступен лизинг от 299 501 ₽/мес
⏱
Под заказ: уточняйте сроки
📦
Доставка: рассчитывается индивидуально
💳
Оплата: по счету, картой, лизинг
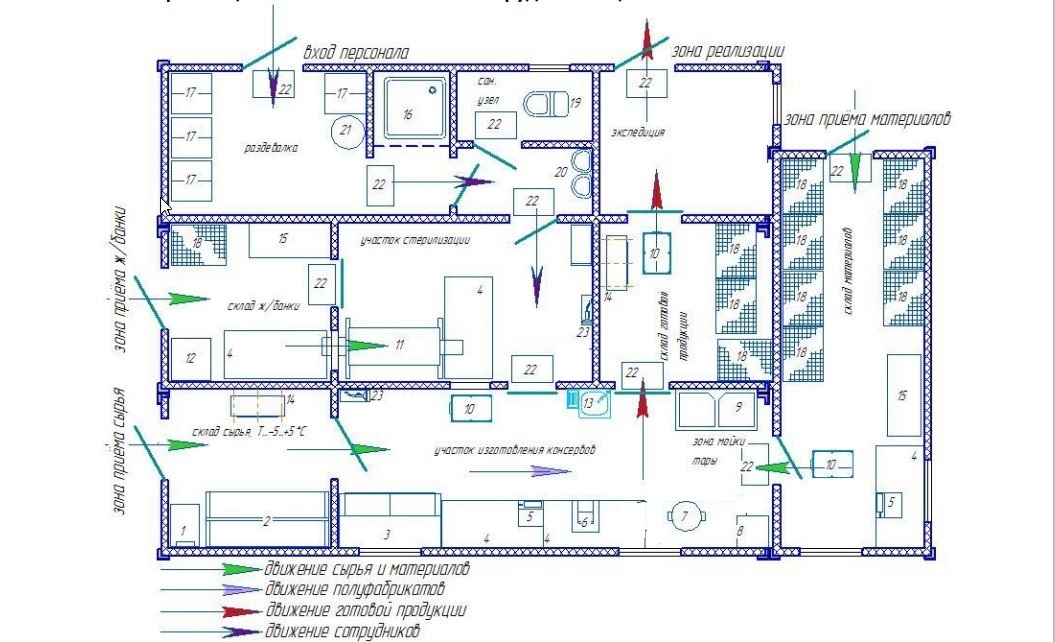
представляет собой здание на основе металлокаркаса, с использованием сэндвич панелей в качестве ограждающих конструкций. Цех укомплектован всем необходимым оборудованием и коммуникациями для полного технологического цикла переработки мяса. Оборудование цеха соответствует санитарно-гигиеническим требованиям Роспотребнадзора, техническому регламенту Таможенного союза «О безопасности мяса и мясной продукции» (ТР ТС 034/2013).
представляет собой здание на основе металлокаркаса, с использованием сэндвич панелей в качестве ограждающих конструкций. Цех укомплектован всем необходимым оборудованием и коммуникациями для полного технологического цикла переработки мяса. Оборудование цеха соответствует санитарно-гигиеническим требованиям Роспотребнадзора, техническому регламенту Таможенного союза «О безопасности мяса и мясной продукции» (ТР ТС 034/2013).
Поставщик
- Полное наименование:
- ООО "Пищевые технологии"
- ИНН:
- 7722474556
- КПП:
- 772201001
- ОГРН:
- 1197746280874
- Адрес:
- г. Москва
